由長沙礦冶研究院的馮定五博士研制的干式永磁高梯度磁選機主要由內、外筒體,磁介質,磁介質振動系統,風力分散系統,給料系統,接料斗機架等組成。
該機內、外磁系之間的分選間隙可調整,以適應不同物料對分選場強的要求,其結構選擇齒狀磁場多極永磁磁系,所采用的釹鐵硼永磁體的磁能積為293kJ/m3,剩余磁感應強度1.1T,內、外磁系均為磁鐵鎧裝擠壓磁系,減少了漏磁。磁介質選用鋼板網,用于吸附進入分選空間的物料,隨著磁介質的轉動和振動,磁性物料進入接料斗,而非磁性物料則隨自身的軌跡拋落出去。其中的風力分散系統是通過旋轉的葉輪產生的離心力把物料甩向周邊的斗壁,物料中的團聚顆粒受撞擊而分散,并在葉輪產生的風力作用下送入磁選機的分選腔。機械振動則提高了物料分選的選擇性,避免機械夾雜。

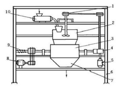
1、葉輪 2、給料斗 3、分選筒體 4、凸輪 5、振動電機
6、機架 7、接料斗 8、傳動電機 9、振動彈簧 10、星形給料機
在連州復合材料廠的鉀長石除鐵試驗中,干式永磁振動高梯度磁選機使精礦中的Fe2O3由0.27%降至0.18%,達到了工業一級品的要求,而且運行過程中未出現物料的機械堵塞,運行平穩可靠,但是1.5t/h的處理能力需要進一步提高。